24-STUNDEN-SERVICEAnrufen: 06158/941160⎪Mail: info@wendel-gruppe.de Wendel ist PartnerLIFT Mitglied

Hochbaukran mieten

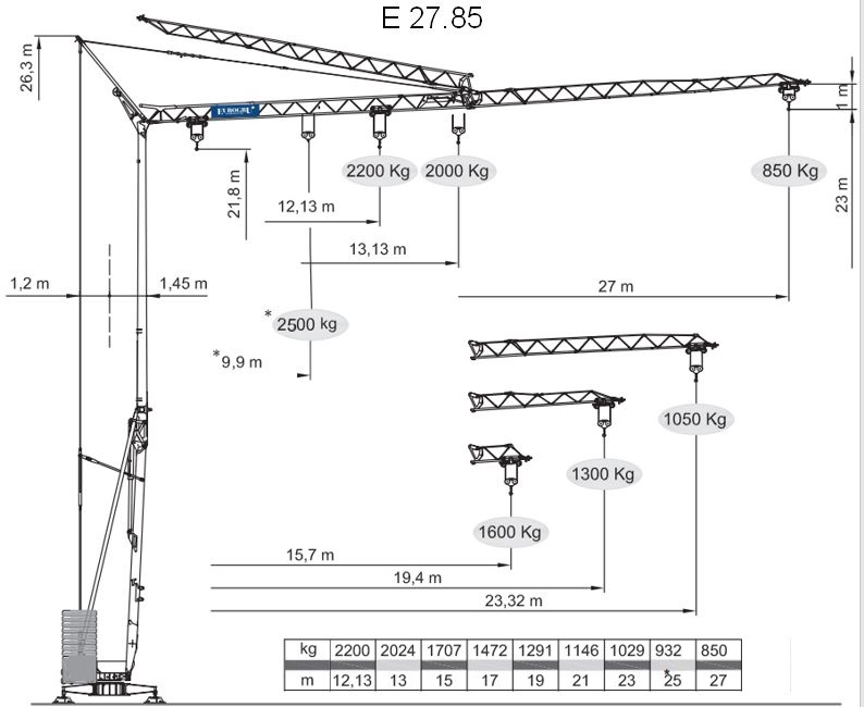
E 27.85 Turmdrehkran

E 27.85 Turmdrehkran

Aufbau: Anhänger
max. Hakenhöhe (m) bei Ausladung 27m:
23,00
Turmhakenhöhe (m): 21,80
max. Tragkraft (kg) bis 12,13 m: 2.200
max. Spitzenlast (kg): 850
max. Ausladung (m): 27,00
Gesamtgewicht (kg): 25200
Transportlänge (m): 13,25
Transportbreite (m): 2,45
Transporthöhe (m): 3,00
Antrieb: 230V/400V
Abstützbreite (m): 3,60 x 3,60
Schwenkradius (m): 1,95
.

DATENBLATT 

Ausstattung: 
  • Frequenzgesteuertes Schwenken mit Inverter
  • Gegenballast
  • Kabelsteuerung
Optionales Zubehör:
  • Funkfernsteuerung
  • Digitale Kranwaage
  • Farbe auf Wunsch
  • Ballastierungsgalgen
  • Abstützpyramiden
  • Windmesser mit Display
  • Maximale Tragkraft bis 12,13 m: 2.500 kg

Zentrale Riedstadt

Bergfeldstraße 55-59
64560 Riedstadt
Tel. 06158 - 941160
Fax 06158 - 9411629
info@wendel-gruppe.de
Montag - Freitag: 07:00 - 17:00 Uhr

Abholung abgeschleppter Fahrzeuge:

Terminvereinbarung erforderlich!
Montag - Donnerstag 8:00 - 16:00 Uhr
Freitag 8:00 - 12:00 Uhr

 

Mietstation Oppenheim

Am Wattengraben 22
55276 Oppenheim
Tel. 06133 - 5722996
Fax 06133 - 5722998
rheinlandpfalz@wendel-arbeitsbuehnen.de

Montag - Freitag: 07:00 - 17:00 Uhr

Folgen Sie uns bei

© 2026 Wendel Gruppe.
Wir benutzen Cookies

Wir nutzen Cookies auf unserer Website. Einige von ihnen sind essenziell für den Betrieb der Seite, während andere uns helfen, diese Website und die Nutzererfahrung zu verbessern (Tracking Cookies). Sie können selbst entscheiden, ob Sie die Cookies zulassen möchten. Bitte beachten Sie, dass bei einer Ablehnung womöglich nicht mehr alle Funktionalitäten der Seite zur Verfügung stehen.